L’architecte Philippe de Menten, fondateur de BEE architect, travaille avec T.Palm depuis près de 20 ans. Il a d’ailleurs construit sa maison, une habitation passive, avec l’entreprise de construction. Et à la demande de T.Palm, il a dessiné une maison inspirationnelle pour les futurs candidats-bâtisseurs. Il a opté naturellement pour une maison peu énergivore, qui respecte l’environnement et s’adapte à des vies en perpétuelle évolution. C’est une maison compacte, qui offre tout le confort d’une grande.
Une question de budgetLe budget est l’un des principaux axes à la genèse du projet de Philippe de Menten. Accéder à la construction est compliqué d’un point de vue financier, surtout pour les jeunes ménages.
« Il n’est pas toujours possible de construire la maison de ses rêves. L’idée est donc de construire une maison abordable, qui puisse accueillir les besoins d’une famille en évolution.»
Quand un candidat-bâtisseur se lance dans un projet de construction, il n’a pas toujours une famille bien établie, ses besoins ne sont pas encore complets, la famille va grandir. Du coup, l’architecte a pensé les espaces afin qu’ils puissent s’adapter facilement à l’évolution d’une famille.

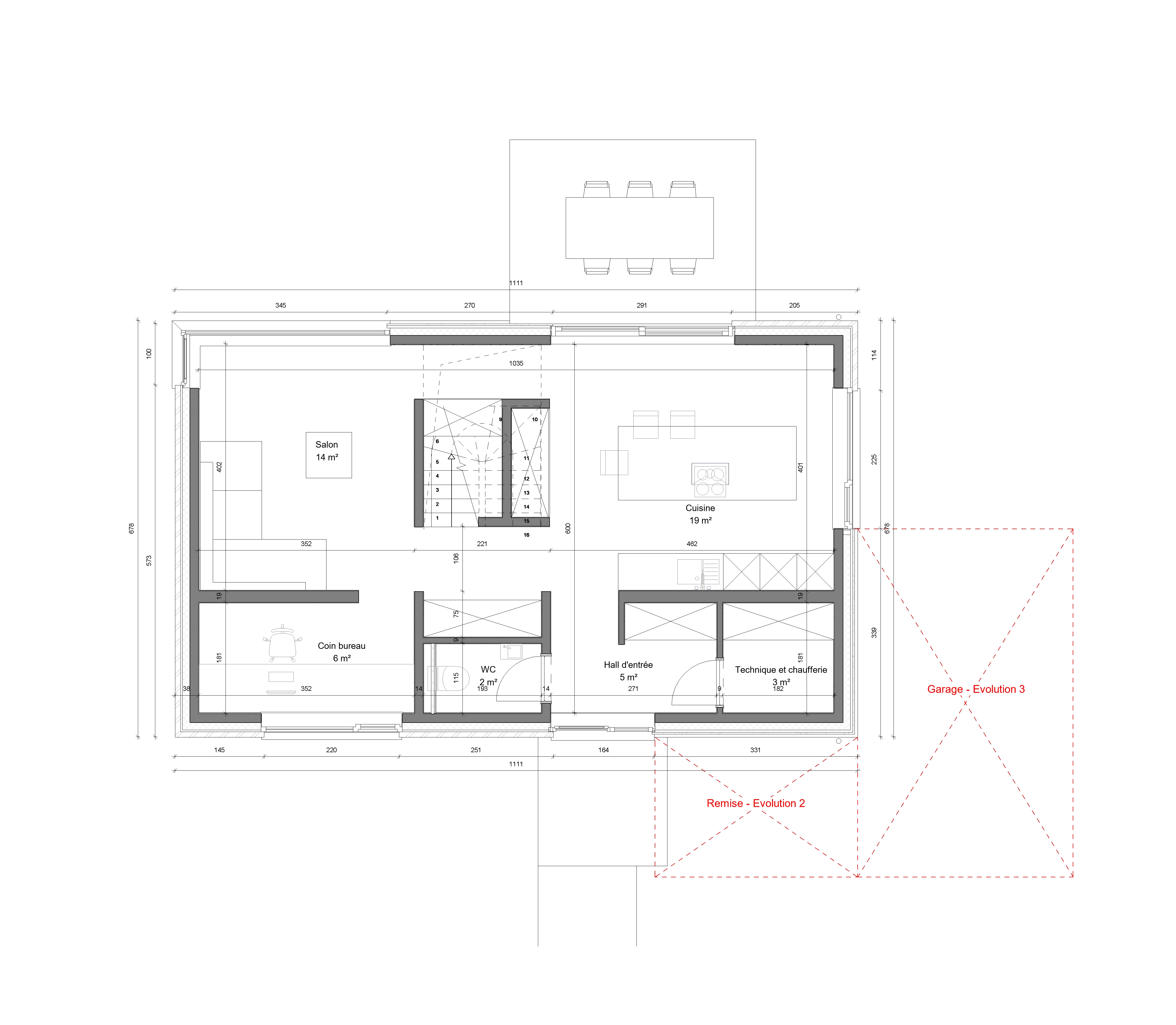
Une cage d’escalier centrale pour séparer les espaces de vie.
Philippe de Menten repense d’emblée l’espace intérieur de la maison. La vie dans un loft a un temps, elle est agréable quand les enfants sont petits. Cette disposition permet en effet d’avoir constamment un œil sur sa progéniture. Par contre, dès que la famille grandit, que les enfants deviennent ados, les espaces fermés ont la cote, parce qu’ils correspondent à un besoin d’intimité.
En plaçant la cage d’escalier au milieu de la maison, BEE architect a recréé des zones « refuge ». La zone bruyante est par essence la cuisine. Si on veut s’extraire du vacarme du quotidien, le séjour a besoin d’être un espace familial plus calme. Une cage d’escalier centrale assure le rôle d’espace tampon. Elle peut conserver une grande ouverture au début de la vie des enfants et progressivement permettre la création de zones « refuge », qu’il s’agisse d’un lieu pour le télétravail, d’un séjour où se ressourcer ou profiter d’un moment calme.
Tous ces espaces cohabitent très bien ensemble et répondent aux besoins de chaque habitant à un moment ou l’autre de la journée.
A l’étage, l’aménagement a été pensé pour être flexible. Il se base sur un maximum de cloisons modulables. Les combles offrent un espace supplémentaire aménageable, transformable en chambre pour un couple ou en salle de jeux pour les enfants.
Cette maison inspirationnelle fait 75m2 au sol. La prouesse technique de Philippe a été d’y aménager des espaces fonctionnels, agréables. Tout le confort se retrouve dans cette maison compacte. Et si on souhaite l’agrandir ? Le bureau a pensé à deux évolutions, l’ajout d’une remise et d’un garage. Signe des temps, la mobilité douce fait de plus en plus partie de la vie de famille. Une remise pour y entreposer vélos, trottinettes devient un espace indispensable.

Au niveau architectural, BEE architect propose un look sobre, intemporel, qui s’intègrera très bien dans la plupart des villes et villages de Belgique. En façade, place à une brique, plus pérenne et durable, qui peut s’adapter aux envies esthétiques de tous les candidats-bâtisseurs.
« On propose aux candidats-bâtisseurs l’utilisation de matériaux biosourcés, on utilise le moins de béton possible, … mais construire pour durer, c’est avant tout construire des habitations de bonne facture dont l’état sera encore impeccable dans de nombreuses années. »
Autre atout de cette maison inspirationnelle, sa faible consommation d’énergie. Cette maison Q-Zen est si compacte qu’elle permet de consommer moins d’énergie qu’une maison classique. Comment ? En prévoyant de larges ouvertures sur deux façades perpendiculaires, elle permet d’orienter au mieux les pièces de vie, et particulièrement la cuisine, et bénéficier ainsi des apports solaires pour le chauffage de la maison.
Philippe de Menten a construit sa propre habitation en mode passif, en innovant avec T.Palm dès 2012. L’occasion pour lui de vérifier au quotidien la justesse des choix opérés pour pouvoir le cas échéant ajuster ceux-ci pour ses clients. Depuis, la législation et le contexte ont bien changé.
Dans les deux cas, la démarche est positive pour l’environnement. La différence fondamentale entre les deux est liée au degré d’autonomie en énergie de l’habitation.
Une maison passive ne doit pas être nécessairement chauffée activement, elle exploite au maximum l’énergie gratuite qu’elle trouve dans son environnement. Elle tire sa chaleur des rayons du soleil, de la chaleur corporelle de ses occupants, des émissions calorifiques des appareils électriques … Et ceci, grâce à une très bonne isolation, à une parfaite étanchéité à l’air, à une orientation idéale de la maison et à un emplacement réfléchi des vitres.
Une habitation Q-Zen ou quasi-zéro énergie tend vers une consommation faible en énergie en intégrant l’apport des énergies renouvelables. Le peu d’énergie nécessaire à la vie de la maison pour le chauffage et la production d’eau chaude est produit sur place à partir bien souvent de panneaux photovoltaïques. Et l’impact sur les factures d’énergie est non négligeable. Consentir des efforts pour des installations qui permettront de réaliser d’importantes économies d’énergie est non seulement bon pour la planète, mais aussi pour le portefeuille.
Contactez-nous pour en savoir plus sur nos maisons inspirationnelles !